
环保型混凝土搅拌站具有环境友好、节约资源、外观与内部环保性能内外兼修的特点。

1、环境友好
环保型混凝土搅拌楼实现工厂式全封装,从外观上看即为一个全封闭的现代化工厂,无扬尘排放、无噪音污染周边环境;废水、废料循环使用,无废水、废渣排放;造型大气、美观,有周边环境相协调;规划合理,厂区绿化率高。与普通搅拌站相比,真正做到了环境友好,在环保性能方面有质的飞跃。
2、节约资源
环保型混凝土搅拌站楼设备低碳节能、生产效率高;废水、废渣做到循环利用;易损件使用寿命长;设备无跑、冒、滴、漏等现象;混凝土质量稳定,合格率高。
3、整体全封闭外观与内部环保性能内外兼修

目前国内已有一定数量的搅拌设备用户意识到了搅拌站的环保问题,并在不同地区建成了都加全封闭型搅拌楼,但需指出的是,并不是全封闭搅拌楼就是环保型搅拌楼,也不是设备具有环保功能就是环保站;真正的环保必须是全封装和设备本身优良的环保性能的结合体,同时还要做到造型美观。
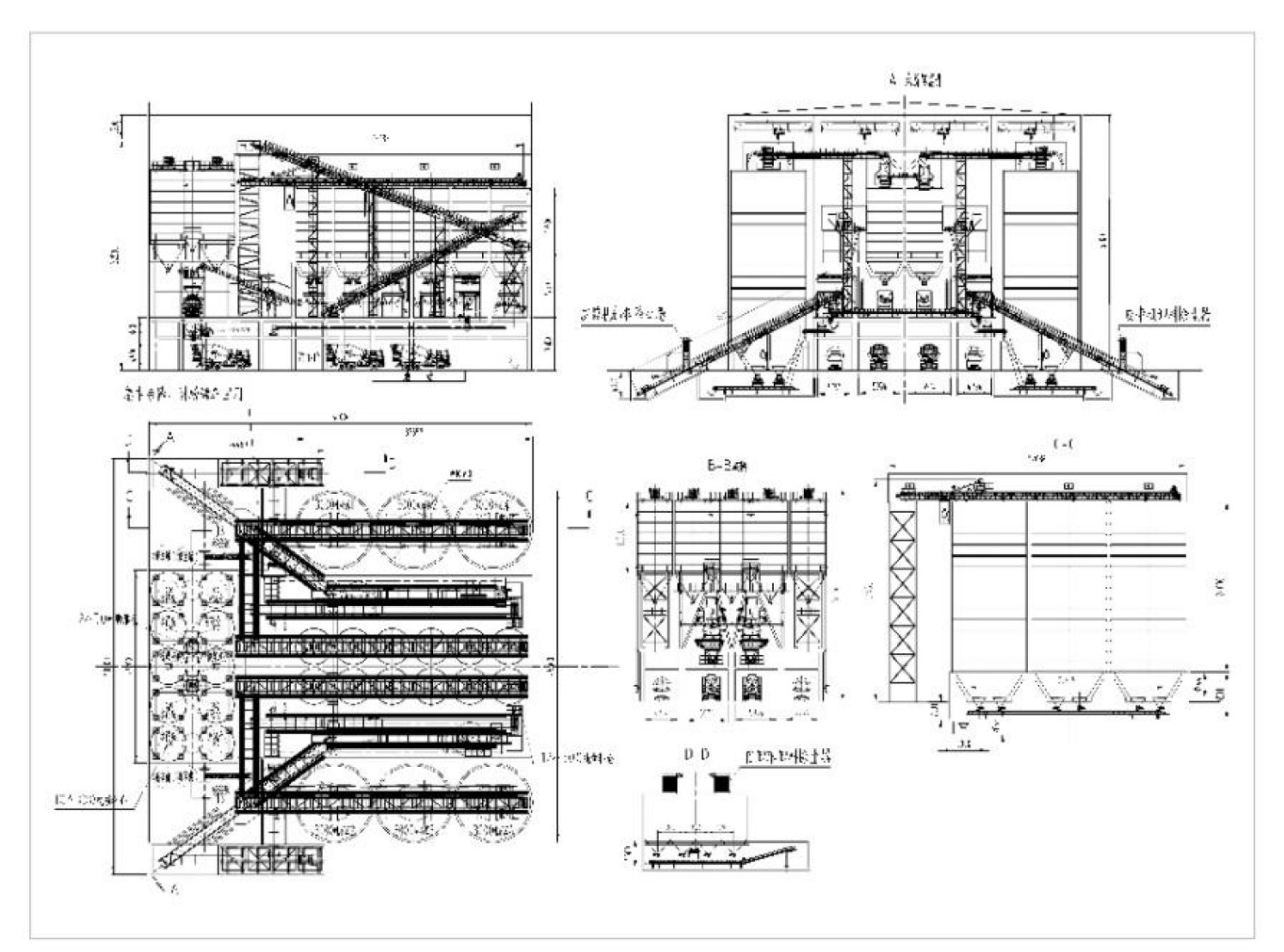
环保型混凝土搅拌设备的优势
1、搅拌楼效率更高、更节能;搅拌楼骨料在主楼顶部称量,免去了皮带输送的时间,从而有效的保证了生产周期,进而保证了生产效率;
2、砂石料可分开下料,可实现裹浆法生产混凝土,提高混凝土强度;
3、设备对场地适用性强;
4、设备布置灵活性强;
5、设备的前封闭封装更方便。


全环保型混凝土搅拌站(楼)主要技术参数表
| 项目 | 单位 | HZS120 | HZS180 | HZS240 | HZS270 |
| 生产率 | m3/h | 120 | 180 | 240 | 270 |
| 主机出料容量 | L | 2000 | 3000 | 4000 | 4500 |
| 主机进料容量 | L | 3200 | 4800 | 6000 | 6750 |
| 骨料称上限称量值 | Kg | 4×3000 | 4×4000 | 4×6000 | 4×6000 |
| 水泥称上限称量值 | Kg | 1200 | 1800 | 2400 | 2400 |
| 粉煤灰称上限称量值 | Kg | 500 | 800 | 1200 | 1200 |
| 水称上限称量值 | Kg | 600 | 800 | 1200 | 1200 |
| 液体外加剂称上限称量值 | Kg | 50 | 100 | 100 | 100 |
| 搅拌功率 | Kw | 2×37 | 2×55 | 2×75 | 2×75 |
| 整机功率 | Kw | 200 | 270 | 3600 | 3600 |
| 卸料高度 | m | 4.2 | 4.2 | 4.2 | 4.2 |
| 骨料计量精度 | % | ±2 | ±2 | ±2 | ±2 |
| 水计量精度 | % | ±1 | ±1 | ±1 | ±1 |
| 水泥、粉尘灰计量精度 | % | ±1 | ±1 | ±1 | ±1 |
| 外加剂计量精度 | % | ±1 | ±1 | ±1 | ±1 |


咨询热线:
